Чертежи для Ремонта
- 13/03/2017 19:37
- Украина, Киев и область
- Услуги - разное
- Продам, предлагаю - частное лицо
Чертежи для Ремонта
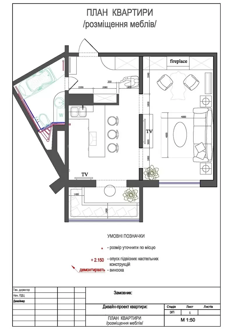
Вы приобрели квартиру или решили сделать перепланировку?
Не знаете с чего начать и как объяснить свои идеи строителям?
Не хотите заказывать дизайн интерьера полностью, но испытываете сложности с созданием планировочного решения?
Мы можем решить эту задачу за Вас.
В результате Вы получите планировку с размерами для строителей. А также план мебели, где вся мебель и сантехника про масштабирована. Проходы, коридоры и т.п. сделаны в соответствии с нормативными требованиями. Вы сможете наглядно показать, где нужны розетки, включатели, куда будут открываться двери, сколько нужно напольного покрытия, плитки и т.д.
Стоимость планировки 10 грн/кв.м(но не меньше 500 грн. за объект).
Готовы подготовить и другие чертежи.
Дизайнеры, Юлия и Ирина
+38 (050) 420 23 71
+38 (063) 276 62 66
yvin.design@gmail.com
http://yvin-design.com.ua/
Студия дизайна ЮВИН
Покупайте безопасно
Новые объявления продавца
-
Чертежи для Ремонта
10 грн.






