Проектирование мебели
- 30/12/2014 12:59
- Украина, Киев и область
- Услуги - разное
- Продам, предлагаю - частное лицо
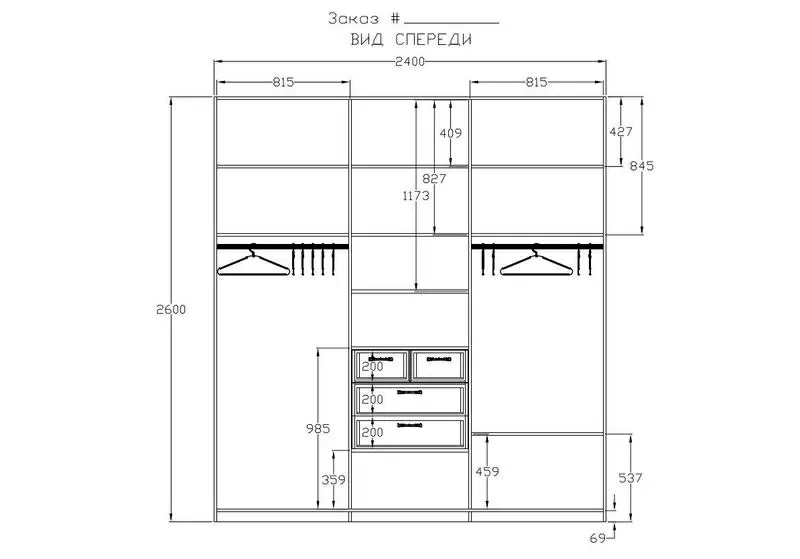
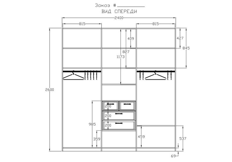
Разработка технической документации для изготовления корпусной мебели по вашим эскизам (кухни, шкафы-купе, межкомнатные перегородки, гардеробные, прихожие, детские, офисная мебель и т. д.).
Пакет документов включает в себя:
- общий вид изделия (2D и 3D модель);
- сборочный чертеж изделия (3D модель);
- деталировку на изделие с указанием присадки (в т.ч. для компании «Вияр»);
- карты раскроя (ДСП, ДВП и т. д.);
- список фурнитуры (спецификация);
- описание последовательности сборки изделия (по необходимости).
Конструкторская документация разрабатывается в программах: AutoCad (2D, 3D), Woody.
Помощь и консультация при выборе материалов и фурнитуры.
Также предоставляем услуги по сборке и установке корпусной мебели.
Стоимость разработки технической документации:
- шкафы-купе, гардеробные, прихожие, детские, офисная мебель – 200 грн/м.п;
- кухни – 250 грн/м.п.
Стоимость сборки и установки корпусной мебели:
- шкафы-купе, гардеробные, прихожие, детские, офисная мебель – 20% от стоимости материалов и фурнитуры;
- кухни –30% от стоимости материалов и фурнитуры.
Опыт работы в мебели 10 лет.








