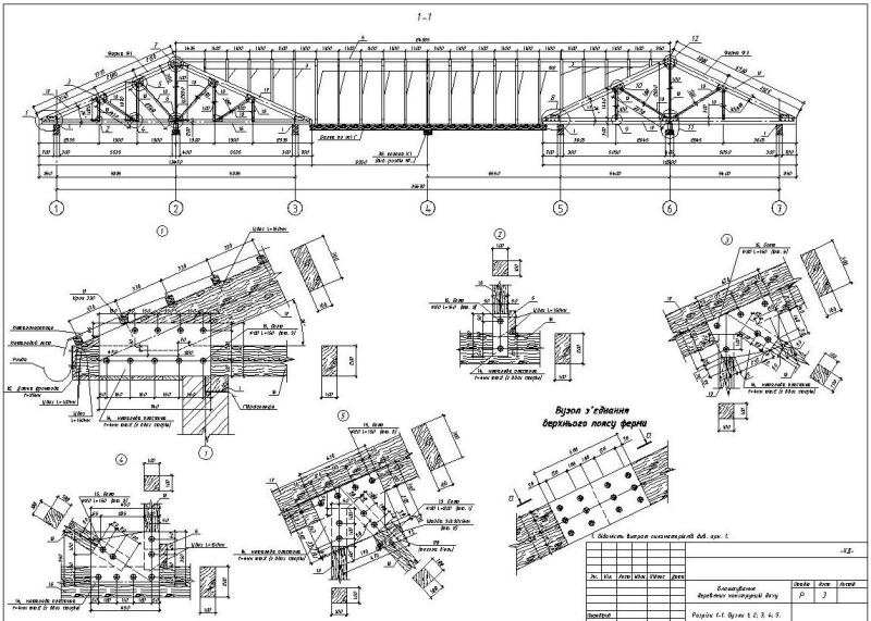
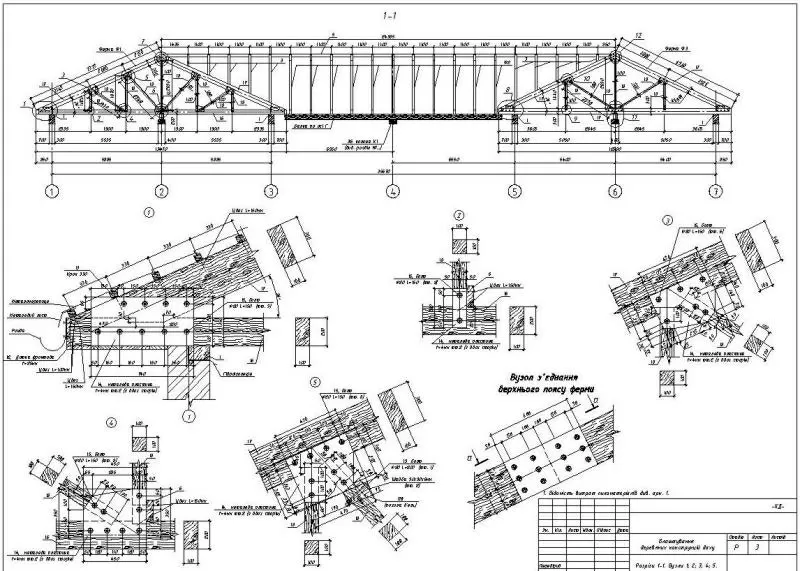
Виконуємо конструктивні креслення: КМ КЗ КД (низькі ціни!!!)
- 08/02/2011 12:52
- Украина, Киев и область
- Услуги - разное
- Продам, предлагаю - частное лицо
Розрахунок і проектування металевих (КМ), кам’яних, залізобетонних (КЗ) дерев’яних (КД) та інших конструкцій. Проводимо авторський нагляд об’єктів!
Готові співпрацювати з архітектурними та дизайнерськими бюро, а також з індивідуальними замовниками!
По наших кресленнях, будівництво – це задоволення!
+38(097) 925-98-38
+38(068) 124-81-85
8 (044) 504-89-09 Інженер-конструктор Тарас.
Taras_dovgalyuk@ukr.net
Чертежи, проект, креслення, проектирование, конструктив, конструктор, иненер-конструктор, конструкции,
ID: 23215
Создано: 12/04/2010

